CONTACTO
Si tienes alguna duda o deseas contactar con nosotros, por favor, rellena el siguiente formulario. Te responderemos lo antes posible.
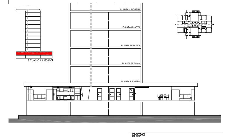
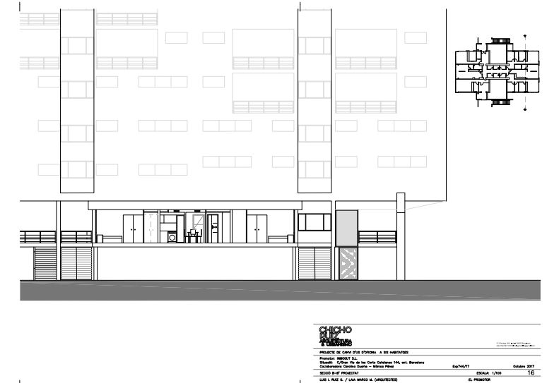
SANTS-MONTJUIC·BARCELONA
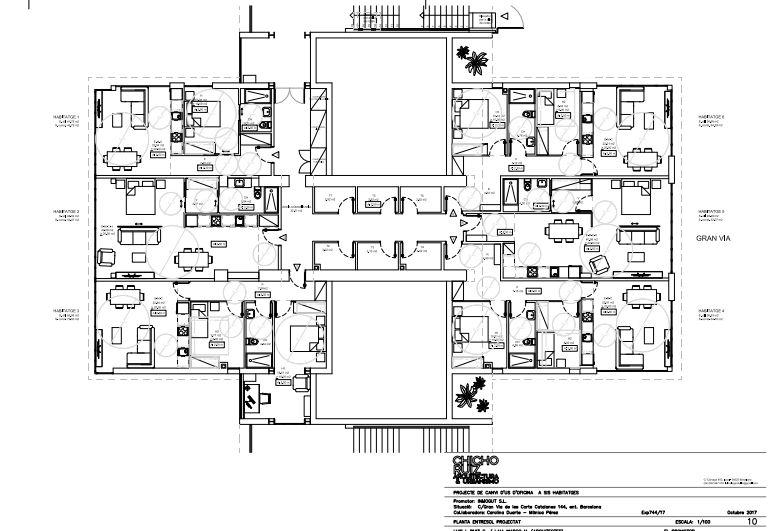
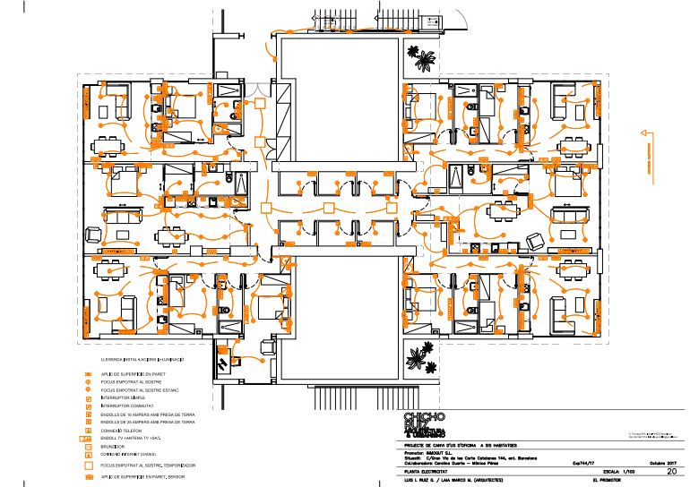
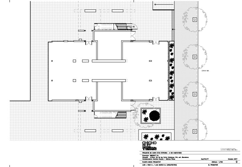
SUPERFÍCIE: 350 M2
Proyecto para la construcción de 6 viviendas de 50 m2 y 6 trasteros
RESERVADO
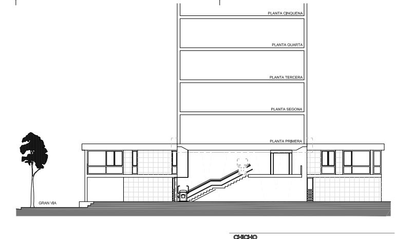
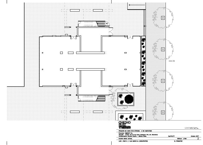
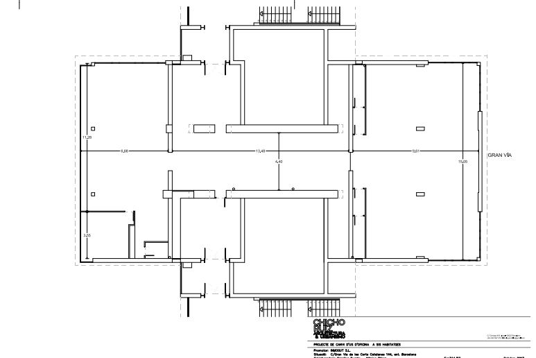
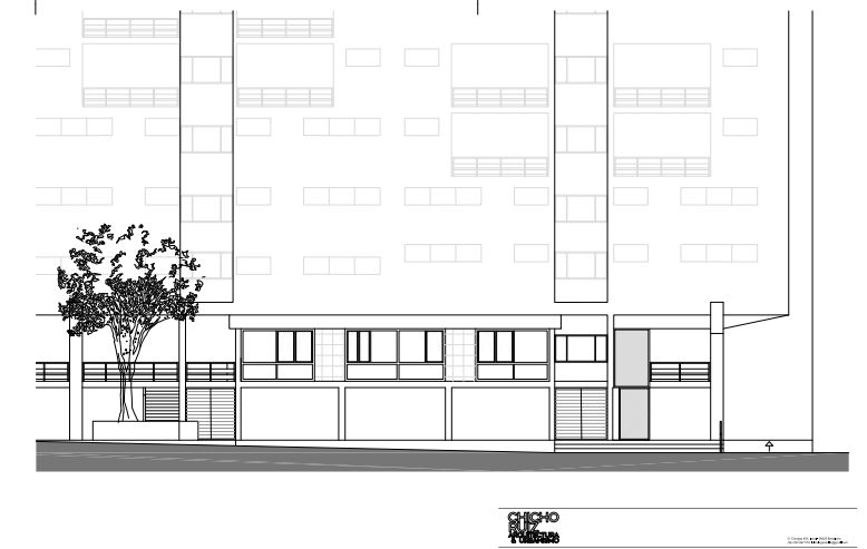
Entresuelo ubicado en la Gran Vía de les Corts Catalanes; local comercial cuyo acceso es por una escalera privativa que arranca desde la planta baja, zona común recayente en la Gran Vía y otro acceso al rellano de esta planta. Consta de nave de superficie construida de 370 m2.
Si tienes alguna duda o deseas contactar con nosotros, por favor, rellena el siguiente formulario. Te responderemos lo antes posible.

GESTIÓN INTEGRAL DE INMUEBLES
T. 93 207 02 17
Carrer de Sant Antoni Maria Claret, 122
08025 Barcelona