CASA EN TRINITAT VELLA

Sant Andreu·BARCELONA

En Venta
PRECIO:
285.000 €

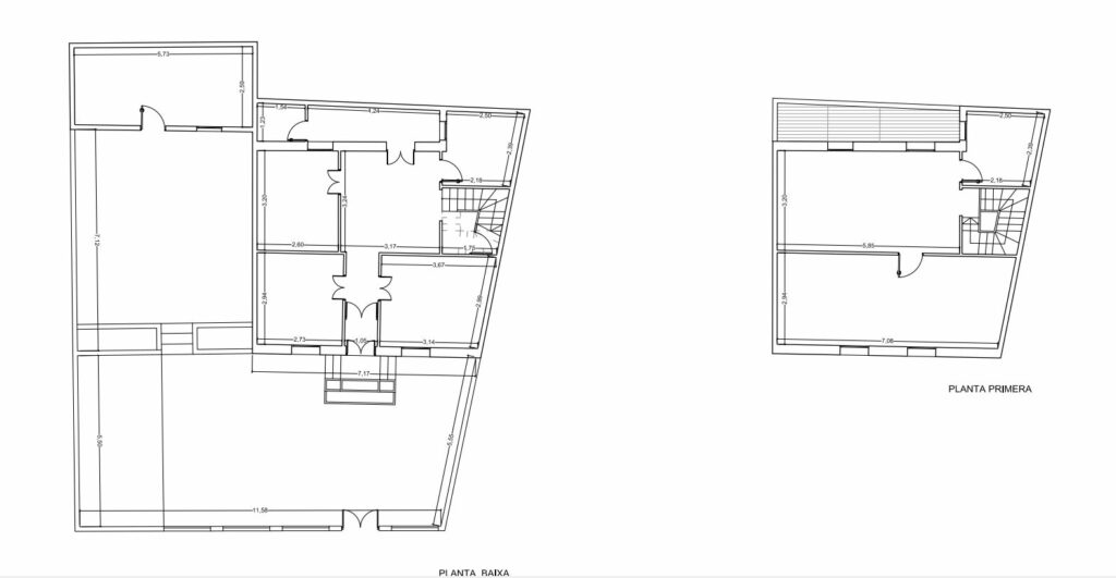
100 m2 en dos plantas + 34 m2 de jardín

RENTABILIDAD: 5,5%

 

REFERENCIA CATASTRAL:
2492213DF3829A0001RZ
LOCALIZACIÓN:
Turó de la Trinitat 27
08033 BARCELONA (BARCELONA)
COEFICIENTE DE PARTICIPACIÓN:
100
CLASE USO:
Residencial
AÑO DE CONSTRUCCIÓN:
1940

Casa tipo pueblo, en el Turó de la Trinitat. Consta de dos plantas y tiene unos 100 m2 más 33 m2 de jardín. Acabada de reformar con suelos de parquet, cocina y baños nuevos, recién pintada.